
창원시립미술관, Competition for Art museum of Changwon, 2022
설계공모 1등 수상.
설계공모 1등 수상.
창원시립미술관,
땅의 지세에 기대듯 비스듬히 적층된 미술관의 모습은 복잡한 형태로 강하게 드러내는 것 보다는 밖에서 바라볼 때 굉장히 단순하고 조용한 모습으로 숲의 푸르름과 남향의 빛이 미술관 깊이 스며들어 사화공원과 함께 자연스러운 하나의 경관이 되도록 하였다.
땅의 지세에 기대듯 비스듬히 적층된 미술관의 모습은 복잡한 형태로 강하게 드러내는 것 보다는 밖에서 바라볼 때 굉장히 단순하고 조용한 모습으로 숲의 푸르름과 남향의 빛이 미술관 깊이 스며들어 사화공원과 함께 자연스러운 하나의 경관이 되도록 하였다.
사업명 : 창원시립미술관 건립
대지위치 : 경남 창원시 의창구 중동 794-11번지(사화공원내)
주요용도 : 문화 및 집회시설 (미술관)
대지면적 : 88,688.7㎡
연면적 : 5,400㎡
추정공사비 : 189억
발주처 : 창원시청 문화유산육성과
대지위치 : 경남 창원시 의창구 중동 794-11번지(사화공원내)
주요용도 : 문화 및 집회시설 (미술관)
대지면적 : 88,688.7㎡
연면적 : 5,400㎡
추정공사비 : 189억
발주처 : 창원시청 문화유산육성과
PERSPECTIVE VIEW
01. 진입광장 +33.5m
01. 진입광장 +33.5m

02. 로비 & 계단 +43.0m

03. 카페, 외부테라스(남측) +38.0m

04. 기획전시실 +49.0m

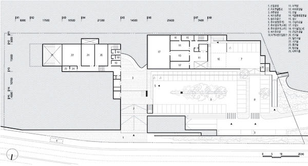
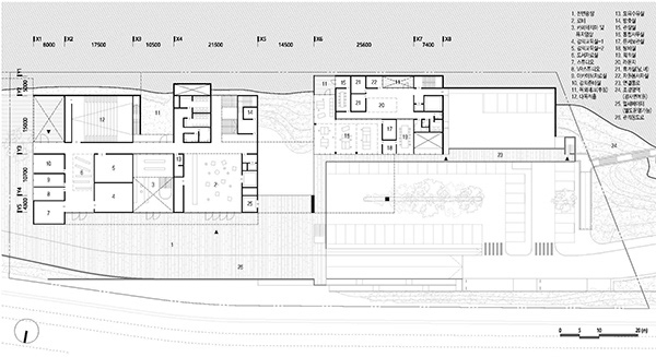
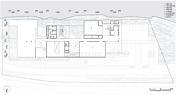
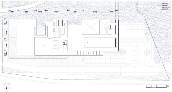
DRAWINGS
지하1층 평면도

1층 평면도

2층 평면도

3층 평면도

김현수 안영주 김혜진 이주은 이다경
이소우
건축사
사무소
건축사
사무소